2626 Habersham Drive
Decatur, GA 30032 United States$359,000
About 2626 Habersham Drive
habersham-hill
MLS# 7740770
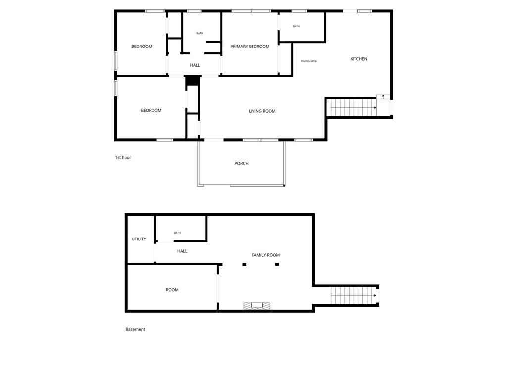
This 3 bed/3 bath craftsman ranch is thoughtfully renovated. With Magnolia home design style, this home comes with a fully finished basement and sits on a third of an acre. Featuring a bright, open floor plan with beautiful shiplap walls in the kitchen, breakfast bar, custom cabinets, stone countertops, built-in wine rack and French doors that overlook the patio and spacious gated backyard. The primary suite is on the main level with a custom tiled bathroom and there are 2 additional bedrooms with a full bathroom. This home also comes with a spacious basement that can be considered as a 4th bedroom, bonus room, media room, and contains a full bath and laundry.
Interior Details
Exterior Details
Location
Schools
Listing Provided Courtesy Of:
Listings identified with the FMLS IDX logo come from FMLS and are held by brokerage firms other than the owner of this website. The listing brokerage is identified in any listing details. Information is deemed reliable but is not guaranteed. If you believe any FMLS listing contains material that infringes your copyrighted work please click here to review our DMCA policy and learn how to submit a takedown request. © 2026 First Multiple Listing Service, Inc.
This property information delivered from various sources that may include, but not be limited to, county records and the multiple listing service. Although the information is believed to be reliable, it is not warranted and you should not rely upon it without independent verification. Property information is subject to errors, omissions, changes, including price, or withdrawal without notice.
For issues regarding this website, please contact Eyesore at 678.692.8512.
Data Last updated on April 23, 2026 11:34am
