2387 Colby Court
Snellville, GA 30078 United States$849,000
About 2387 Colby Court
shadowbrook-crossing
MLS# 7739416
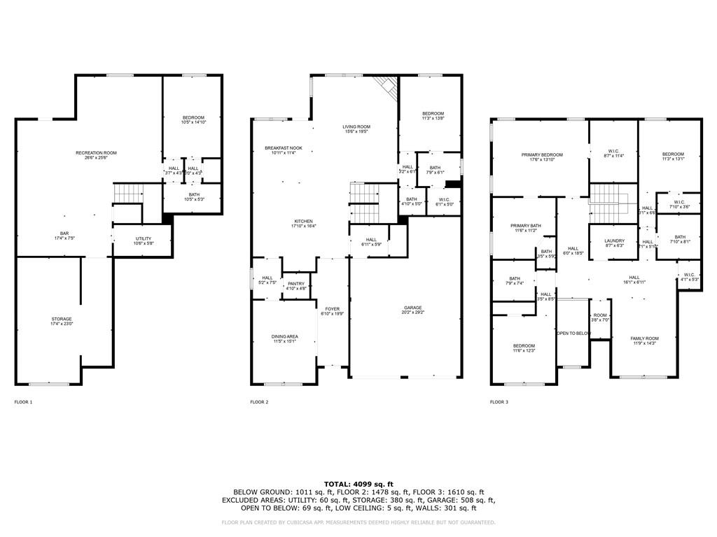
Priced to sell quick Welcome to this NORTH FACING HOME. Step into timeless charm in this gorgeous Snellville masterpiece—a true gem in the coveted Brookwood neighborhood! Beautiful dark hardwoods flow throughout the entire home, paired with a bright neutral palette that radiates warmth. A grand two-story entryway will delight you, setting a tone of timeless elegance. The expansive chef’s kitchen overlooks the living area and shines with stainless appliances, sleek quartz counters, double ovens, a gas cooktop, a large island and a wet bar ideal for whipping up your favorite meals / drinks or hosting festive get-togethers. The open-concept living area, accented by a cozy fireplace, creates a positively chic space perfect for lively gatherings or quiet evenings at home. Four spacious secondary bedrooms with standing showers and walk in closets offer ample room for family, guests, or hobbies, while the stunning owner’s suite boasts trey ceilings, a walk-in closet with built-ins, and a gorgeous ensuite featuring double vanities, a soaking tub, and a large shower for ultimate relaxation. A full, finished basement adds versatility with a bedroom, full bathroom, living area, and kitchenette—perfect for movie and game nights or accommodating visitors. Step outside to a screened-in porch overlooking a fenced backyard and patio, ideal for al fresco dining under the stars or sunny afternoon barbecues. The Brookwood neighborhood perfectly complements your lifestyle with a large pool and playground for endless fun. You’ll find idyllic suburban living just minutes from downtown Snellville, with vibrant shopping, dining, and easy access to Ronald Reagan Pkwy, plus zoning for prestigious Brookwood High School. Schedule your showing today and discover the life within Snellville you’ve been dreaming of! Seller is open to Lease to own or Seller financing with 10% down payment.
Interior Details
Exterior Details
Location
Schools
Listing Provided Courtesy Of:
Listings identified with the FMLS IDX logo come from FMLS and are held by brokerage firms other than the owner of this website. The listing brokerage is identified in any listing details. Information is deemed reliable but is not guaranteed. If you believe any FMLS listing contains material that infringes your copyrighted work please click here to review our DMCA policy and learn how to submit a takedown request. © 2026 First Multiple Listing Service, Inc.
This property information delivered from various sources that may include, but not be limited to, county records and the multiple listing service. Although the information is believed to be reliable, it is not warranted and you should not rely upon it without independent verification. Property information is subject to errors, omissions, changes, including price, or withdrawal without notice.
For issues regarding this website, please contact Eyesore at 678.692.8512.
Data Last updated on April 23, 2026 11:34am
